
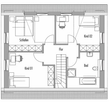
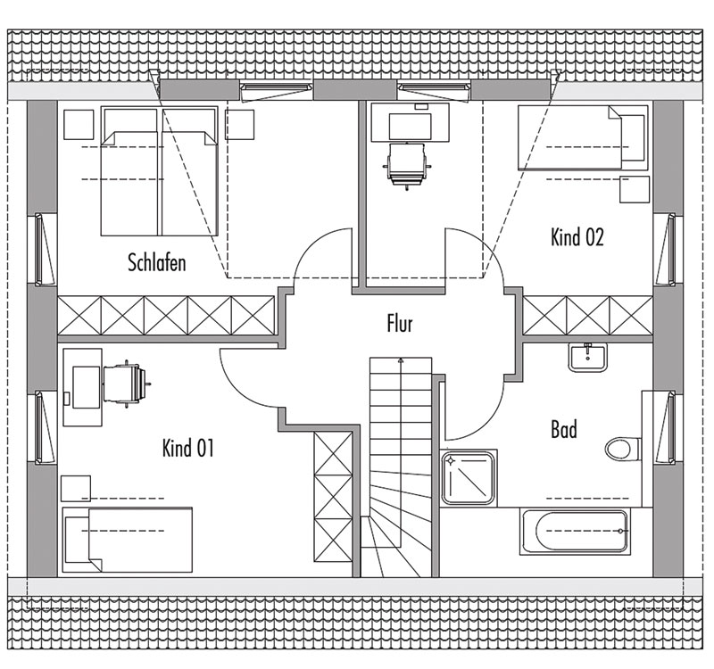
Satteldachhaus als geräumiger Familienort
Haus Typ Osdorf
Ein großer Eingangsbereich, der Wohnbereich, welcher über die gesamte Breite des Hauses geht, und passend dazu eine riesige Doppelflügeltür machen das Erdgeschoss zu einem sehr geräumigen Familienort. Dadurch, dass der Wohnbereich im hinteren Teil des Hauses liegt, lässt sich der Garten oder die Terrasse über einen direkten Zugang aus dem Wohnbereich heraus zu erreichen.
















