
Satteldachhaus mit offener Küche und einladendem Wohnbereich
Haus Typ Kosel
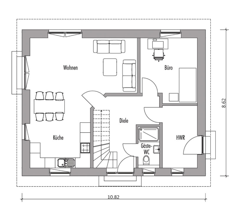
Im Erdgeschoss sorgt die offene Küche für einen sehr großen einladenden Wohnbereich. Dank der Raumaufteilung über Eck sind Couchecke und Küche trotzdem voneinander separiert. Die Essecke wirkt verbindend zwischen diesen beiden Bereichen. Im Obergeschoss befinden sich die Schlafräume und das Hauptbad. Durch die schräggestellten Wände wird der Flur so klein wie möglich gehalten und den weiteren Räumen der maximale Raum gegeben. Durch Dachflächenfenster kann für mehr natürliches Licht gesorgt werden.
















