
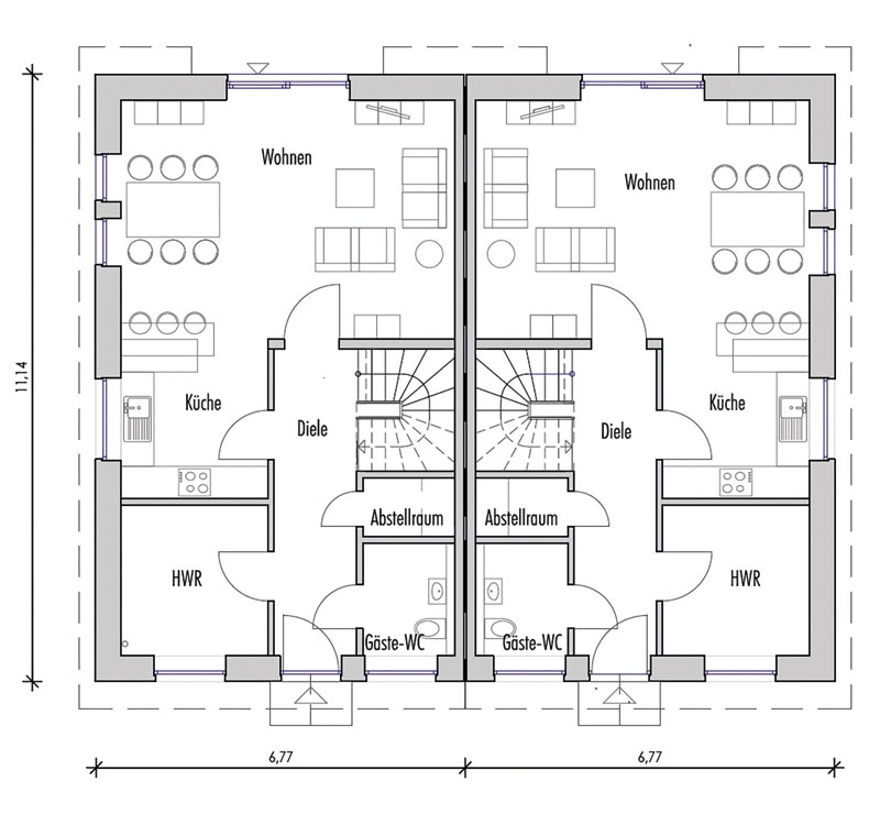
Doppelhaus mit großzügiger Raumaufteilung
Haus Typ Götheby
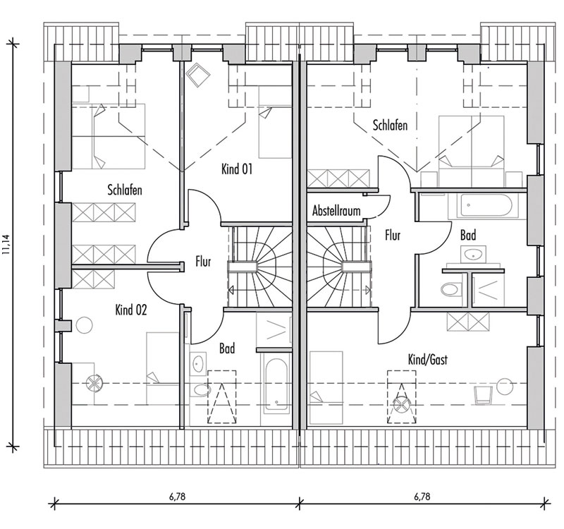
Die Kapitänsgiebel geben im Obergeschoss zusätzlichen Raum und spenden Tageslicht.
Die Gliederung des Innenraums ergibt sich aus der zentral gelegenen Treppe. Der Flur im
Obergeschoss ist so klein wie möglich gehalten, um die größtmögliche Fläche den
Zimmern zuteilen zu können.
Im Erdgeschoss macht eine offene Küche den Wohnbereich besonders einladend und
großzügig. Trotzdem liegt die Küche in einer Nische und ist so räumlich klar vom
Wohnzimmer getrennt.











