
Stadthausvilla mit großzügig geschnittenen Räumen
Haus Typ Gettorf
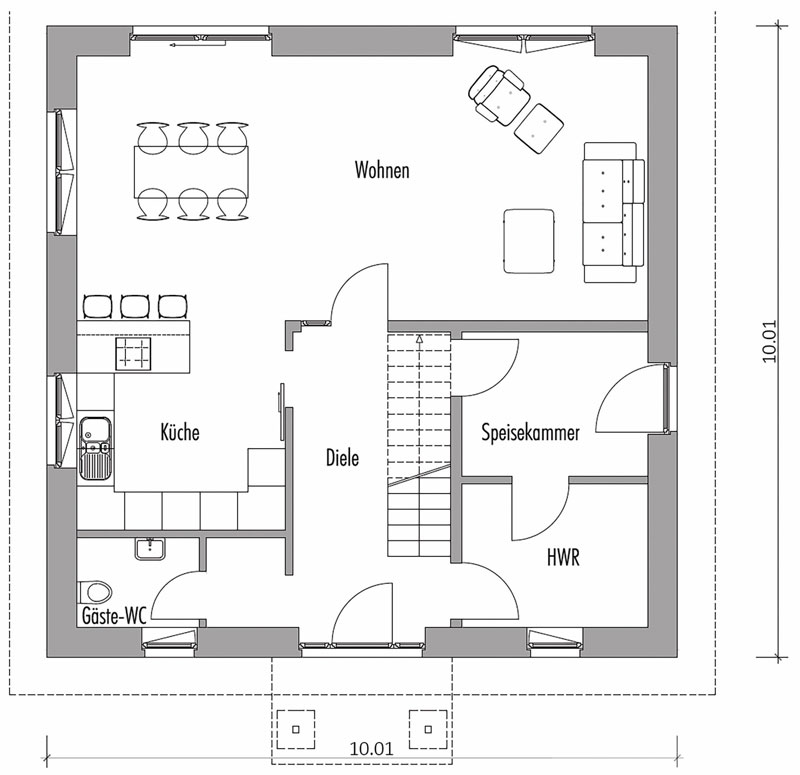
Die Haustürüberdachung betont klar die Vorderseite des Hauses. Die große Diele gliedert das Erdgeschoss und eine Nische bietet Platz für eine Garderobe. Über die geradläufige Treppe gelangt man ins Obergeschoss. Auch hier ist der Flur breit und hat seine eigene Tageslichtquelle.
Durch die große Grundfläche sind die einzelnen Zimmer großzügig geschnitten und das Schlafzimmer bekommt sogar noch eine abgeschlossene Ankleide.











